1-к, Стаханова, 55 Показать на карте
Липецк
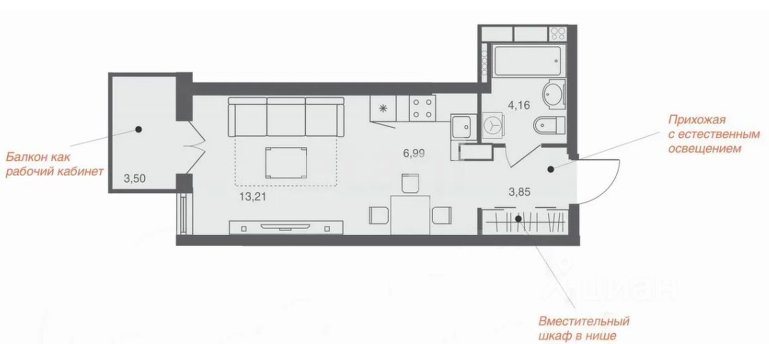
Продается однокомнатная квартира в престижном районе города с развитой инфраструктурой. Объект расположен в спокойном, защищенном от сквозного трафика дворе с современными детскими и спортивными площадками. Окна не выходят на проезжую часть. Ключевое преимущество — удачная планировка с изолированным залом площадью 19.5 м² и просторной кухней 10.5 м² Транспортная доступность высокая: остановка общественного транспорта в двух минутах ходьбы, В непосредственной пешей доступности находятся школа 20 и детский сад 17, а также супермаркеты, аптеки . Квартира представляет собой надежную инвестицию: она идеально подходит как для комфортного проживания, так и для стабильной сдачи в аренду благодаря своему расположению и состоянию. Для покупателей доступны все варианты расчетов, включая ипотечное кредитование, а также полное юридическое сопровождение сделки для безопасного и прозрачного приобретения. Код пользователя: 91152Номер в базе: 10555907
37 м2
1 / 10 этаж
- Показать контакты
- Добавить в избранное
37 м2
1 / 10 этаж
3 290 000
88 919 /м2
