Если цена в объявлении изменится, мы сразу сообщим вам об этом на электронную почту.
Нажимая «Подписаться», вы соглашаетесь с правилами.
продам 3-к, Студеновская, 23б7 400 000 ₽
23 авг
Дата публикации объявления
Обн. сегодня
Дата обновления объявления
5
Количество просмотров (+ просмотры за сегодня)
Топ
87 059 ₽/м²
Чистая продажа
Термин "Чистая продажа" означает, что в квартире никто не прописан или
есть куда выписаться и вывезти вещи. Это лучший вариант для покупателя.
Вероятность срыва сделки минимальна.
Продам 3-комнатную квартиру площадью 85,5 кв. м, расположенную на 8 этаже современного жилого комплекса с продуманной инфраструктурой.
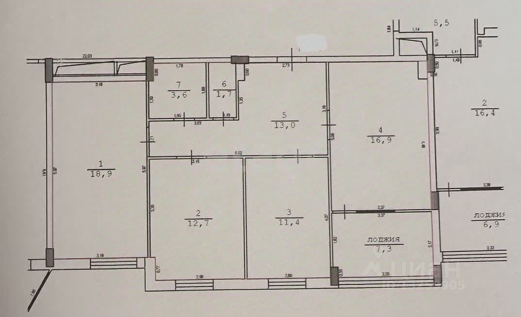
Пространство организовано по евроформату: кухня-гостиная 16,9 кв. м объединена, что создает ощущение простора, с выходом на отапливаемую лоджию 7,3 кв. м, которая может быть интегрирована в жилую зону после демонтажа балконного блока, что увеличит полезную площадь. Зал - 18,9 кв., и две спальни - 12,7 и 11,4 кв.м. Санузел раздельный. Окна смотрят во двор. Не угловая! Дом оснащен автономной газовой котельной, что снижает затраты на отопление по сравнению с централизованными системами.
Продам 3-комнатную квартиру площадью 85,5 кв. м, расположенную на 8 этаже современного жилого комплекса с продуманной инфраструктурой.
Пространство организовано по евроформату: кухня-гостиная 16,9 кв. м объединена, что создает ощущение простора, с выходом на отапливаемую лоджию 7,3 кв. м, которая может быть интегрирована в жилую зону после демонтажа балконного блока, что увеличит полезную площадь. Зал - 18,9 кв., и две спальни - 12,7 и 11,4 кв.м. Санузел раздельный. Окна смотрят во двор. Не угловая! Дом оснащен автономной газовой котельной, что снижает затраты на отопление по сравнению с централизованными системами. Придомовая территория закрыта от посторонних, благоустроена детскими и спортивными площадками, а парковка включает подземный и наземный гостевой варианты. Безопасность обеспечивается системой видеонаблюдения.
Расположение жилого комплекса сочетает удобство и тишину: в пешей доступности находятся школы, детский сад, магазины, остановка общественного транспорта и Верхний парк для прогулок. Близость к педагогическому университету и пунктам выдачи заказов добавляет практичности. Квартира продается по цене на 1 млн рублей ниже стоимости у застройщика, что делает предложение выгодным для тех, кто ищет качественное жилье без переплат. Состояние объекта — новое, с возможностью индивидуальной отделки под предпочтения будущего владельца. Это рациональный выбор для тех, кто ценит комфорт, экономию на коммунальных расходах и развитую инфраструктуру.