Если цена в объявлении изменится, мы сразу сообщим вам об этом на электронную почту.
Нажимая «Подписаться», вы соглашаетесь с правилами.
продам дом, Ново-Заречное кп (Грязинский район)7 000 000 ₽
19 апр 2025
Дата публикации объявления
Обн. сегодня
Дата обновления объявления
3
Количество просмотров (+ просмотры за сегодня)
Спецпредложение
Турбо x8
51 245 ₽/м²
Чистая продажа
Термин "Чистая продажа" означает, что в квартире никто не прописан или
есть куда выписаться и вывезти вещи. Это лучший вариант для покупателя.
Вероятность срыва сделки минимальна.
Этажей1
Площадь участка12,5 соток
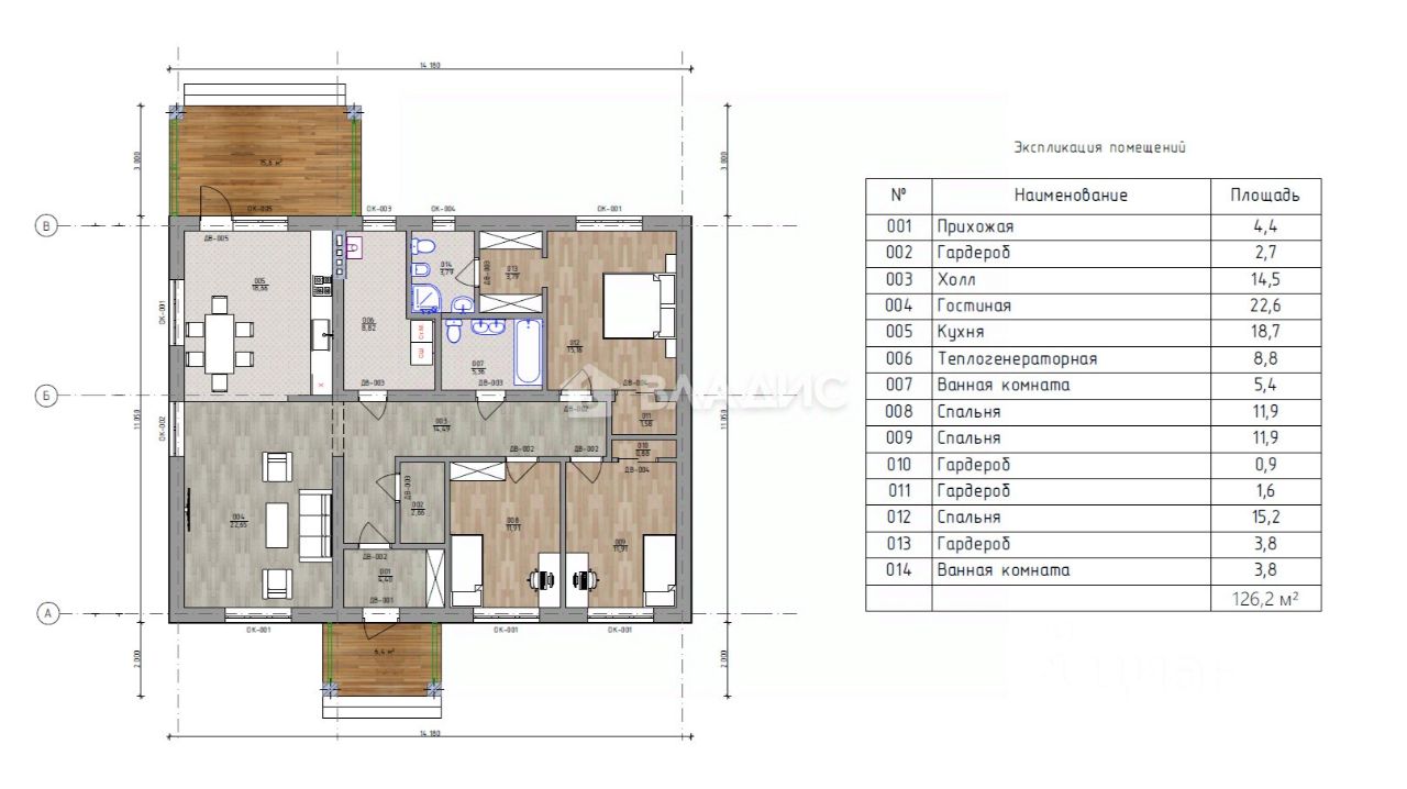
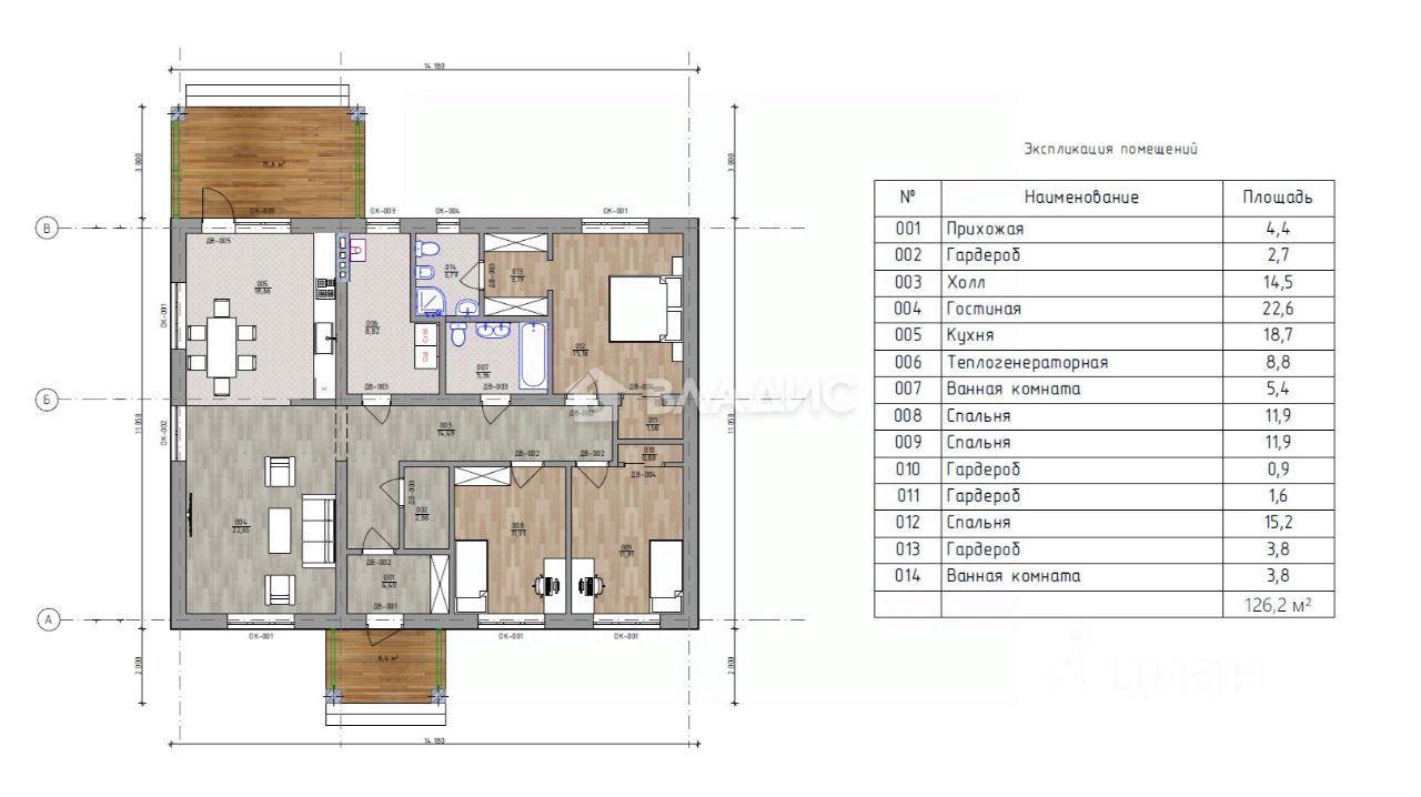
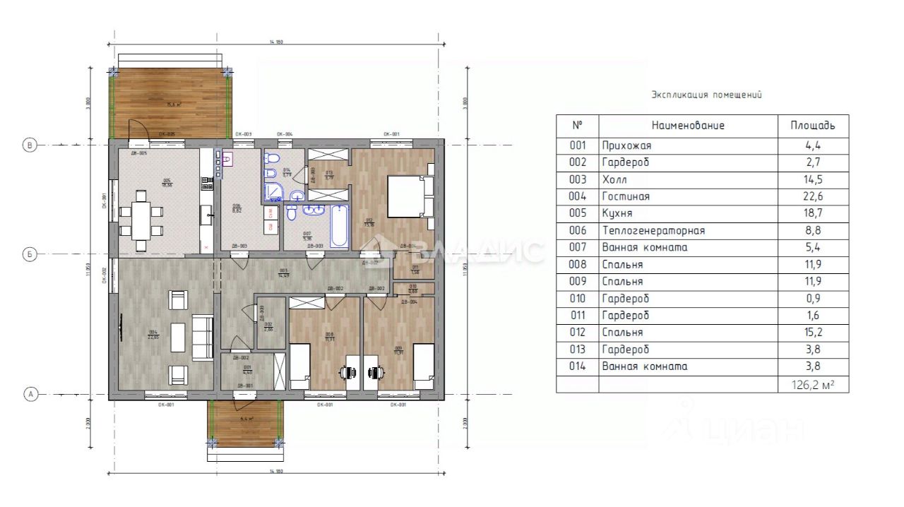
Общая площадь136,6 м2
Материал домакирпич
ЭлектричествоЕсть
Газоснабжениецентральное
Код объекта: 1569317. Семейная ипотека от 5.9% Сельская ипотека от 3%
Продается одноэтажный дом с тремя спальнями и просторной кухней - гостиной в селе Плеханово (КП Ново-Заречное), на участке 12,5 соток по ул. Земляничная д.41.
Общая площадь дома 136,6 м2. Просторная кухня-гостиная площадью 41,5 м2 с выходом на террасу, мастер-спальня площадью 15,5 м2, с отдельным санузлом и двумя гардеробными, две спальни по 12 м2, второй санузел 5,5 м2, бойлерная/постирочная 9 м2.
* Ленточный фундамент 1700х400 мм.
* Внешние стены из газосиликатного блока толщиной 400 мм (2 ряда по 200 мм со смещением). Внутренние перегородки: несущие стены - 300 мм, межкомнатные 150 мм.
* Армопояс 250 мм, перекрытие из деревянных балок 50 х 250 мм.
Код объекта: 1569317. Семейная ипотека от 5.9% Сельская ипотека от 3%
Продается одноэтажный дом с тремя спальнями и просторной кухней - гостиной в селе Плеханово (КП Ново-Заречное), на участке 12,5 соток по ул. Земляничная д.41.
Общая площадь дома 136,6 м2. Просторная кухня-гостиная площадью 41,5 м2 с выходом на террасу, мастер-спальня площадью 15,5 м2, с отдельным санузлом и двумя гардеробными, две спальни по 12 м2, второй санузел 5,5 м2, бойлерная/постирочная 9 м2.
* Ленточный фундамент 1700х400 мм.
* Внешние стены из газосиликатного блока толщиной 400 мм (2 ряда по 200 мм со смещением). Внутренние перегородки: несущие стены - 300 мм, межкомнатные 150 мм.
* Армопояс 250 мм, перекрытие из деревянных балок 50 х 250 мм. Утеплитель Knauf 200мм.
* Мягкая кровля премиум класса Dсke.
* Увеличенные оконные проемы с тройным стеклопакетом, профиль толщиной 70 мм.
* Крыльцо, терраса.
* Дорога до участка отсыпана щебнем. Время в пути, к примеру, от Центрального Рынка до дома 30 минут.
Рядом живут порядочные соседи, уже не первый год.
Смонтированы все инженерные сети: собственная скважина, электричество 15 кВт., канализация, газ. Вода заведена в дом, разведена система канализации, потолки затянуты пароизоляцией и подшиты.
Рядом ещё два аналогичных дома с разной степенью готовности, так что можно переезжать за город большой и дружной компанией. Приезжайте на просмотр, дом вам точно понравится.
Рассмотрим любую форму оплаты. Возможно приобретение дома по семейной ипотеке (для семей с двумя детьми до 18 лет или одним до 7 лет) - по ставке 6%, с использованием материнского капитала или в обмен на вашу недвижимость.
Есть фото всех этапов строительства.
Сельская ипотека - 3% ( для участников СВО и их семей, работников сельского хозяйства, работников социальной сферы на селе).