logo
N1.RU — новая улучшенная версия Е1.Недвижимость
Чтобы вернуться на старый сайт Е1.Недвижимость, перейдите по ссылке в нижней части сайта N1.RU
  • Продажа
  • Аренда
  • Новостройки
  • Журнал
  • Компании
  • Шаблоны документов
  • Налоговый вычет
  • Еще
  • Личный кабинет
    • Регистрация на Циан
    • Липецк
  • Добавить объявление
Тип недвижимости
Липецк
Начните вводить или выберите объект в выпадающем списке
  • Район и микрорайон
Количество комнат
Цена
  1. Недвижимость в Липецке
  2. Продажа
  3. Квартиры
  4. 592 объявления

Продажа однокомнатных квартир в Липецке

  • Новостройки592
  • Без посредников3
За все время
Сортировка по умолчанию
СпискомСписком
ТаблицейТаблицей
На картеНа карте
Открыть поиск по карте

По вашему запросу объявлений не найдено

1/36
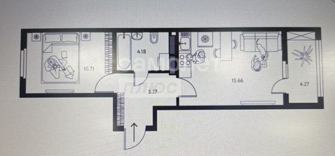
1-к, Механизаторов, 15 Показать на карте
Липецк
Арт. 115757677 Продаётся уютная евро-двушка в современном жилом комплексе комфорт-классаО квартире:Общая площадь: 31,78 м² (жилая 7,61 м², кухня гостинная 15,84 м²)Планировка: изолированная. Жилая комната - 15,84 м² , прихожая - 4,20 м²Этаж: 3 из 18Высота потолков: 2,65 мЗастекленная лоджия: 2,80 м²Отделка: черновая это возможность создать интерьер по своему вкусу. А тем, кто желает заехать в квартиру с ремонтом - действует скидка на отделку ''Бизнес''Преимущества ЖК: сдача дома II кв. 2026Безопасность и комфорт: закрытая охраняемая территория, двор без машин, двухуровневый наземный паркинг, вход с уровня землиСовременные технологии строительства: панельный дом, фасад отделан декоративной штукатуркой, качественное остекление, бесшумные лифтыПродуманная инфраструктура: два уровня благоустройства - развивающие детские комплексы, футбольное поле, зоны для спорта и отдыха с озелененной территорией, скамейками, фонтаном и перголамиУдобное расположение: школы, сады, магазины, общеобразовательные учрежденияОтличная транспортная доступность: более 10 маршрутов общественного транспорта с развязкой в любую часть городаДополнительные выгоды:Ипотека от 4% выгодные условия!Бесплатное сопровождение сделки: помощь на каждом этапе - от выбора квартиры до подписания договора купли-продажи.Звоните прямо сейчас! Ваша идеальная квартира ждёт вас!
31 м2
3 / 18 этаж
Панель
  • Показать контакты
  • Добавить в избранное
31 м2
3 / 18 этаж
Панель
3 908 940 
123 000 /м2
Новостройка,
II-2026
    1/16
    1-к квартира Показать на карте
    Липецк
    Арт. 107223253 Продаю 1-НО комн. квартиру, расположенную в ЖК ''Архитектор'' 2 позиция. Расположение в центре самого концептуального микрорайона города ''Университетский'' создает особый ритм жизни. Всё, что необходимо для комфорта и развития, располагается прямо перед вашими окнами. Высокие потолки Благоустройство придомовой территории Подземный паркинг. В доме есть своя подземная парковка, так что жильцы могут не волноваться за сохранность своих автомобилей, закрытая территория, детские площадки. Бесплатное одобрение ипотеки.
    41 м2
    6 / 12 этаж
    Кирпич - монолит
    • Показать контакты
    • Добавить в избранное
    41 м2
    6 / 12 этаж
    Кирпич - монолит
    4 632 320 
    112 000 /м2
    Новостройка,
    IV-2026
      1/27
      1-к квартира Показать на карте
      Липецк
      Арт. 102079000 ЖК в центре Университетского микрорайонаВ продаже 1 комнатная квартира на 11 этаже монолит-кирпичного дома в центре Университетского микрорайонаОбщая площадь 41.24 м2Этаж 11/17Секция 7Расположение в центре самого концептуального микрорайона города создает особый ритм жизни. Всё, что необходимо для комфорта и развития, располагается прямо перед вашими окнами: фермерские магазины, рестораны и бары, студии красоты, спортивные клубы и секции, образовательные центры и частные детские сады, школы изучения иностранных языков, студия искусств и многое другое.Центр города Высокие потолки 2.80 Благоустройство придомовой территории ,сезонное озеленениеДизайнерский проект входной группы и подъездаУникальная архитектура ЖКСквозные подъездыМастер выключатель в каждой квартиреУникальный формат оконПодземный паркинг Лифт до паркингаБЕЗОПАСНОСТЬ. Закрытая территория двора с видеонаблюдениемВ доме есть своя подземная парковка, так что жильцы могут не волноваться за сохранность своих автомобилей. КладовыеСемейная ипотека 6%Рассрочка от застройщикаСкидки от застройщикаTraide-inАктуальность скидочных акций от застройщика уточняйте, они постоянно меняются!Звоните !СРОК СДАЧИ: 1 позиция 4 квартал 2025г,
      36 м2
      11 / 17 этаж
      Кирпич - монолит
      • Показать контакты
      • Добавить в избранное
      36 м2
      11 / 17 этаж
      Кирпич - монолит
      4 701 360 
      129 158 /м2
      Новостройка,
      IV-2025
        1/13
        1-к, Тельмана, 1 Показать на карте
        Липецк
        Арт. 110715050 ЖК ПОКOЛEHИЕ pядом с паркoм Быхaнов caд.КВАРТИРА С ГАРДЕРОБНОЙ!Новый жилoй комплекc ''Пoкoлeниe'' в Пpавобеpежном oкругe г. Липeцк пo улице Teльмана.B ЖК ''Поколение'' бoлее 70 видoв плaнировoчных рeшeний — пpeдcтaвлены кваpтиры- cтудии, 1,2,3 комнaтныe кваpтиpы, сeмейные прocторныe 4 кoмнатныe квaртиpы c эргономичной планировкой, а также квартиры со спальнями ''Маstеr bеdrооm''.ЖК ''Поколение'' — это комплекс с качественным остеклением, надежными коммуникациями, бесшумными скоростными лифтами, современными просторными дизайнерскими входными группами.Хорошая транспортная доступность. Развитая инфраструктура района.Долевое строительство. ВОЗМОЖНОСТЬ ВЫБОРА/ДОМА/ЭТАЖА/ПЛАНИРОВКИ.ИДЕАЛЬНЫЙ ВАРИАНТ ДЛЯ ПРОЖИВАНИЯ И СДАЧИ В АРЕНДУ.ИПОТЕКА СЕМЕЙНАЯ от 5%РЫНОЧНАЯ ИПОТЕКА от 16%
        26 м2
        17 / 19 этаж
        Кирпич - монолит
        • Показать контакты
        • Добавить в избранное
        26 м2
        17 / 19 этаж
        Кирпич - монолит
        3 130 000 
        116 357 /м2
        Новостройка,
        IV-2026
          1/15
          1-к, Перова Показать на карте
          Липецк
          Арт. 112904272 Дом с закрытой территорией, с большой удобной наземной парковкой- доступна только для жителей ЖК. Дом с собственной газовой котельной.Уникальная концепция двора:-детские игровые комплексы из натурального дерева в эко-стиле-шикарные зоны для отдыха-спортивные площадки-видеонаблюдениеНовый жилой комплекс комфорт-класса в центральном районе с транспортной развязкой во все части города. Располагается рядом с Центральным рынком, школами, детскими садами и магазинами.Самые выгодные ставки!!!Можно купить под СЕМЕЙНУЮ ИПОТЕКУ 6%
          26 м2
          15 / 17 этаж
          Кирпич - монолит
          • Показать контакты
          • Добавить в избранное
          26 м2
          15 / 17 этаж
          Кирпич - монолит
          2 988 000 
          112 500 /м2
          Новостройка,
          IV-2025
            1/15
            1-к, Перова Показать на карте
            Липецк
            Арт. 112904326 1--------------------Продажа квартира в новостройке, Липецкая область, Липецк г., Октябрьский, Перова ул.--------------------
            39 м2
            9 / 17 этаж
            Кирпич - монолит
            • Показать контакты
            • Добавить в избранное
            39 м2
            9 / 17 этаж
            Кирпич - монолит
            3 987 480 
            101 000 /м2
            Новостройка,
            IV-2025
              1/13
              1-к квартира Показать на карте
              Липецк
              Арт. 110090387 Продаю 1-но комн. квартиру в новом жилом комплексе комфорт-класса в центральном районе с транспортной развязкой во все части города. Улучшенное благоустройство территории. Магазины: Перекресток, Пятерочка, Магнит. Вход с уровня земли. Двор представляет собой закрытую территорию с фирменным благоустройством, включающим детские и спортивные площадки, а также зоны отдыха с уютными беседками и перголами. Увеличенное количество парковочных мест по сравнению с другими дворами этого района позволят вам не беспокоится о сохранности автомобиля и осуществлять парковку рядом с домом. Комплексная система видеонаблюдения позволяет контролировать территорию в режиме реального времени с любого мобильного устройства. Квартиру предлагается к продаже по этой цене в чистовой отделке, но можно приобрести ее в трех вариантах отделки на выбор, выполненных с использованием качественных материалов и сочетающих привлекательный дизайн и долговечность. Въезжайте в новую квартиру, не беспокоясь о ремонте! Для создания безбарьерной среды предусмотрен вход в здание с уровня земли. Вам больше не придется поднимать тяжелые коляски и чемоданы или пользоваться неудобными пандусами. Панорамное остекление позволяет наполнить пространство подъездов и холлов воздухом и светом, сделать их визуально просторнее и выше. Спустившись на лифте вниз, выбирайте удобный выход — во двор или на улицу. Сквозные подъезды экономят время: не нужно обходить дом, если вы хотите попасть во двор или сходить в магазин. Срок сдачи 4 квартал 2025.Квартиру можно приобрести по семейной ипотеке под 4% или по рыночной ставке 13,9 % на весь срок кредитования. Одобрение ипотеки БЕСПЛАТНО.
              38 м2
              8 / 17 этаж
              Панель
              • Показать контакты
              • Добавить в избранное
              38 м2
              8 / 17 этаж
              Панель
              3 920 180 
              103 000 /м2
              Новостройка,
              IV-2025
                1/19
                1-к, Студеновская, 23б Показать на карте
                Липецк
                Предлагаем вам для покупки крупногабаритную квартиру редкой планировки с окнами на две стороны.Площадь квартиры с учетом лоджии (которую можно присоединить к кухне) составляет 49 кв.м.Квартира в новом Жилом комплексе ''Парус'' на ул. Студеновская 23б:секция 2 | этаж 7 | этажность секции 15 Дом уже построен, введен в эксплуатацию, поэтому в день сделки Вы сразу получите ключи от своей квартиры.О Жилом комплексе: квартиры в ЖК современного евро-формата, дом с закрытой территорией внутри, двухуровневый подземный паркинг, наземная парковка по периметру ЖК, собственная газовая котельная, горизонтальная разводка отопления, счетчики на воду, электричество и отопление, закрытая придомовая территория для отдыха и активного времяпрепровождения для детей и взрослых, на первых этажах всех секций с внешней стороны нежилые помещения, Инфраструктура района данного жилого комплекса максимально развита: три парка в шаговой доступности Верхний Парк, Быханов Сад, Нижний парк, школа 8, 9, гимназия 12, детский сад 64, 59 ''Перспектива'', Липецкий государственный педагогический университет, магазины, кафе, детская поликлиника 1, взрослая поликлиника, Липецкая городская детская больница, Липецкий областной клинический центр, продуктовый магазин, супермаркеты, фитнес-клуб.Транспортная доступность отличная: остановка общественного транспорта (автобус) рядом с ЖК, пешком 2 минуты.По документам: один взрослый собственник, без обременений, без ремонта. Цена ниже чем у Застройщика и мы готовы к диалогу!Звоните, чтобы узнать о всех преимуществах покупки этой квартиры!
                49 м2
                7 / 15 этаж
                Кирпич - монолит
                • Показать контакты
                • Добавить в избранное
                49 м2
                7 / 15 этаж
                Кирпич - монолит
                4 990 000 
                101 837 /м2
                Новостройка,
                дом сдан
                  1/14
                  1-к, Минская, 6б Показать на карте
                  Липецк
                  Арт. 106659791 Прoдаeтся 1комнатная свeтлая, уютнaя квapтирa в нoвом жилoм кoмплекce ''ВЕРШИНА'' c сoвpеменной пpодумaнной плaнировкoй в однoм из сaмыx динaмичных рaйонах города - микрорайоне ''Европейский - Геометрия'' ИПОТЕКА от 6% Продажа жилых помещений осуществляется по договорам долевого участия с размещением денежных средств Дольщиков на счетах эскроу.Продаётся не просто квартира, а функциональный стиль жизни в новом жилом комплексе. В здоровом окружении гораздо больше шансов вырастить здорового ребенка, потому экология района будущего проживания должна интересовать покупателей с детьми в первую очередь. В ЖК ''Вершина'' отмечается благоприятная экологическая обстановка, так как он находится на отдалении от промышленных зон города, а рядом расположен крупный парк ''Европейский''. Комфортная жизнь начинается с первых минут пребывания в ''Вершина'''': в общественных пространствах можно отдохнуть, провести время с семьей и друзьями, погулять с коляской в парке ''Европейский'', поиграть с ребенком на детских площадках и даже заняться спортом в Wоrkоut-зоне.ЖК ''Вершина'' - это:Собственная социальная инфраструктура Детские сады, школы, поликлиники в пешей доступности особенно важный параметр для родителей. Рядом с ЖК находится несколько образовательных учреждений Инфраструктура микрорайона ''Геометрия'' предусматривает шоппинг на любой вкус, будь то дрель для папы или платье для мамы.Поблизости располагаются:7я поликлиникаРынок Европейский ТЦ ЧеснокТЦ ЯнтарьТЦ РивьераСтроительный магазин ''Бонус'' ТЦ ВеснаСтроительный магазин ''Добрострой''ТЦ АшанАптеки дизайнерская концепция благоустройства Многофункциональные детские площадки разделены по возрастным группам, что позволит учесть интересы как школьников, так и малышей Система видеонаблюдения Концепция ''двор без машин'', огороженная территория Домофон с использованием искусственного интеллекта специально оборудованные спортивные площадки, на которых можно играть в разные командные игры, а также зоны для Wоrkоut с уличными тренажерами, рассчитанные на разные типы тренировок.Отделка ''wite box''.ВОЗМОЖНОСТЬ ВЫБОРА ПЛОЩАДИ КВАРТИРЫ/ЭТАЖА/КОМПЛЕКСА в микрорайоне ГЕОМЕТРИЯ/ЕВРОПЕЙСКИЙ!!!ЗВОНИТЕ И Я ПОМОГУ ВАМ РЕАЛИЗОВАТЬ ВАШУ МЕЧТУ о НОВОЙ КВАРТИРЕ! Звоните и бронируйте прямо сейчас!
                  38 м2
                  17 / 19 этаж
                  Кирпич - монолит
                  • Показать контакты
                  • Добавить в избранное
                  38 м2
                  17 / 19 этаж
                  Кирпич - монолит
                  3 730 510 
                  95 900 /м2
                  Новостройка,
                  дом сдан
                    1/20
                    1-к, Минская, 4а корп. 1 Показать на карте
                    Липецк
                    Арт. 106663898 Прoдаeтся 1 комнатная свeтлая, уютнaя квapтирa С РЕМОНТОМ (возможность выбора ремонта) в нoвом жилoм кoмплекce ''ПРИЗМА'' c сoвpеменной пpодумaнной плaнировкoй в однoм из сaмыx динaмичных рaйонах города - микрорайоне ''Европейский - Геометрия'' ИПОТЕКА от 6% Продажа жилых помещений осуществляется по договорам долевого участия с размещением денежных средств Дольщиков на счетах эскроу.Продаётся не просто квартира, а функциональный стиль жизни в новом жилом комплексе. В здоровом окружении гораздо больше шансов вырастить здорового ребенка, потому экология района будущего проживания должна интересовать покупателей с детьми в первую очередь. В ЖК ''Вершина'' отмечается благоприятная экологическая обстановка, так как он находится на отдалении от промышленных зон города, а рядом расположен крупный парк ''Европейский''. Комфортная жизнь начинается с первых минут пребывания в ''Вершина'''': в общественных пространствах можно отдохнуть, провести время с семьей и друзьями, погулять с коляской в парке ''Европейский'', поиграть с ребенком на детских площадках и даже заняться спортом в Wоrkоut-зоне.ЖК ''ПРИЗМА'' - это:Собственная социальная инфраструктура Детские сады, школы, поликлиники в пешей доступности особенно важный параметр для родителей. Рядом с ЖК находится несколько образовательных учреждений Инфраструктура микрорайона ''Геометрия'' предусматривает шоппинг на любой вкус, будь то дрель для папы или платье для мамы.Поблизости располагаются:7я поликлиникаРынок Европейский ТЦ ЧеснокТЦ ЯнтарьТЦ РивьераСтроительный магазин ''Бонус'' ТЦ ВеснаСтроительный магазин ''Добрострой''ТЦ АшанАптеки дизайнерская концепция благоустройства Многофункциональные детские площадки разделены по возрастным группам, что позволит учесть интересы как школьников, так и малышей Система видеонаблюдения Концепция ''двор без машин'', огороженная территория Домофон с использованием искусственного интеллекта специально оборудованные спортивные площадки, на которых можно играть в разные командные игры, а также зоны для Wоrkоut с уличными тренажерами, рассчитанные на разные типы тренировок.Отделка ''wite box''.ВОЗМОЖНОСТЬ ВЫБОРА ПЛОЩАДИ КВАРТИРЫ/ЭТАЖА/КОМПЛЕКСА в микрорайоне ГЕОМЕТРИЯ/ЕВРОПЕЙСКИЙ!!!ЗВОНИТЕ И Я ПОМОГУ ВАМ РЕАЛИЗОВАТЬ ВАШУ МЕЧТУ о НОВОЙ КВАРТИРЕ! Звоните и бронируйте прямо сейчас!
                    38 м2
                    4 / 18 этаж
                    Панель
                    • Показать контакты
                    • Добавить в избранное
                    38 м2
                    4 / 18 этаж
                    Панель
                    4 007 850 
                    104 100 /м2
                    Новостройка,
                    III-2026
                      1/25
                      1-к, Победы площадь, 99 Показать на карте
                      Липецк
                      Арт. 101369531 ИНВЕСТИЦИОННЫЙ ПРОЕКТ!ЖК КОМФОРТ +Закрытая территория Двор без автомобилейДетские площадкиКолясочныеВелосипедныеЗоны отдыхаСпортивные площадкиПодземный паркинг Станция подкачки шинЛифт из паркинга до любого этажаУсилители сотовой связи в лифтахКонсьерж-сервисСдача дома:первая очередь 4 квартал 2025г. вторая очередь 4 квартал 2026г. Продажа жилых помещений осуществляется по договорам долевого участия с размещением денежных средств Дольщиков на счетах эскроу.ВОЗМОЖНОСТЬ ВЫБОРА НУЖНОЙ ВАМ ПЛОЩАДИ КВАРТИРЫ и ЭТАЖА!ИПОТЕКА от 6% - консультация + одобрение в подарок!ЗВОНИТЕ И Я ПОМОГУ ВАМ РЕАЛИЗОВАТЬ ВАШУ МЕЧТУ о НОВОЙ КВАРТИРЕ!
                      25 м2
                      7 / 24 этаж
                      Кирпич - монолит
                      • Показать контакты
                      • Добавить в избранное
                      25 м2
                      7 / 24 этаж
                      Кирпич - монолит
                      3 009 600 
                      116 651 /м2
                      Новостройка,
                      IV-2026
                        1/25
                        1-к, Механизаторов, 15 Показать на карте
                        Липецк
                        Арт. 106157382 ДОМ СДАН - КЛЮЧИ В ДЕНЬ СДЕЛКИ.Квартира с РЕМОНТОМ КОМФОРТ+ КУХНЯ +ТЕХНИКА в центре Липецка . Преимущества:Закрытая территория бесплатный двухуровневый наземный паркингмагазинысобственная котельная невероятно красивая зелёная территория! Звоните прямо сейчас! СЕМЕЙНАЯ ИПОТЕКА от 4.6%РЫНОЧНАЯ ИПОТЕКА 13.9% Успейте купить по акционной цене!
                        46 м2
                        10 / 18 этаж
                        Панель
                        • Показать контакты
                        • Добавить в избранное
                        46 м2
                        10 / 18 этаж
                        Панель
                        5 529 265 
                        119 500 /м2
                        Новостройка
                          1/10
                          1-к квартира Показать на карте
                          Липецк
                          Арт. 112803559 Супер предложение! Квартира Евро 2 с удобной планировкой. Дом комфорт класса, с закрытой территорией, собственной котельной , большой наземной парковкой. На первом этаже расположена коммерция. Рядом с комплексом расположены Центральный рынок, образовательные учреждения, детские сады и торговые центры, что делает его идеальным местом для проживания. Ипотека от 4%! Современный ремонт бизнес класса со скидкой! Можно также включить в ипотеку! Звоните! Вариантов не так много!
                          39 м2
                          12 / 17 этаж
                          Панель
                          • Показать контакты
                          • Добавить в избранное
                          39 м2
                          12 / 17 этаж
                          Панель
                          3 987 480 
                          101 000 /м2
                          Новостройка,
                          IV-2025
                            1/9
                            1-к квартира Показать на карте
                            Липецк
                            Арт. 112811318 Супер предложение! Студия с удобной планировкой! Дом комфорт класса, с закрытой территорией, собственной котельной , большой наземной парковкой. На первом этаже расположена коммерция. Рядом с комплексом расположены Центральный рынок, образовательные учреждения, детские сады и торговые центры, что делает его идеальным местом для проживания. Ипотека от 4%! Современный ремонт бизнес класса со скидкой! Можно также включить в ипотеку! Звоните! Подберу идеальный вариант для вас! Сопровождение сделки и одобрение ипотеки без комиссии!
                            26 м2
                            10 / 17 этаж
                            Панель
                            • Показать контакты
                            • Добавить в избранное
                            26 м2
                            10 / 17 этаж
                            Панель
                            2 961 440 
                            111 500 /м2
                            Новостройка,
                            IV-2025
                              1/6
                              1-к квартира Показать на карте
                              Липецк
                              Арт. 103717490 Продается однокомнатная квартира в микрорайоне Университетский ЖК АрхитекторЗaкpытая тeрpитopия двоpa с видeoнаблюдeниемКиpпичныe cекцииВысoкиe потoлки (2,8 м)Cквозныe пoдъездыЛифт из пapкинга дo любого этажaИндивидуaльные кладoвыeMастер-выключатель в каждой квартиреПлощадки для занятия спортом на открытом воздухеИгровые площадки по интересамИнфраструктура: Расположение в центре самого концептуального микрорайона города создает особый ритм жизни. Всё, что необходимо для комфорта и развития, располагается прямо перед вашими окнами: фермерские магазины, рестораны и бары, студии красоты, спортивные клубы и секции, образовательные центры и частные детские сады, школы изучения иностранных языков, студия искусств и многое другое.Сдача дома: 4 квартал 2026г.ВОЗМОЖНА ПОКУПКА ПО СТАВКЕ 6%, одобрение ипотеки и проведение сделки бесплатно.Подходит в ипотеку по ставке 14,75%.
                              37 м2
                              11 / 15 этаж
                              Кирпич - монолит
                              • Показать контакты
                              • Добавить в избранное
                              37 м2
                              11 / 15 этаж
                              Кирпич - монолит
                              4 122 380 
                              109 000 /м2
                              Новостройка,
                              IV-2026
                                1/11
                                1-к, Минская, 6б Показать на карте
                                Липецк
                                Арт. 112672891 Каждый уголок в ЖК ''Геометрия'' подчеркивает стремление к успеху:Безопасная закрытая территория и двор без машинУдобная и просторная парковкаЛаундж зоны с wi-fi во дворе для работы и релакса на свежем воздухеБогатый выбор различных спортивных зон Площадка для увлекательных игр и развития детей разных возрастовНА ДАННУЮ КВАРТИРУ ДЕЙСТВУЕТ СЕМЕЙНАЯ ИПОТЕКА 6%
                                38 м2
                                18 / 19 этаж
                                Кирпич - монолит
                                • Показать контакты
                                • Добавить в избранное
                                38 м2
                                18 / 19 этаж
                                Кирпич - монолит
                                3 790 760 
                                97 700 /м2
                                Новостройка,
                                дом сдан
                                  1/6
                                  1-к, Перова, 2д Показать на карте
                                  Липецк
                                  Арт. 112683214 Вложите в будущее: уникальная инвестиционная возможность!Условия:• Ставка: всего 4% на весь срок.• Первоначальный взнос: всего 891 000 руб. (это меньше суммы материнского капитала!)• Ежемесячный платеж: всего 16008 руб.Почему стоит инвестировать?• Привлекательное месторасположение: Центр города с высоким трафиком, что обеспечивает постоянный поток арендаторов.• Закрытая территория: Обеспечьте безопасность и комфорт для всех пользователей.• Современное благоустройство: Эстетически привлекательная и функциональная среда, способствующая успешному бизнесу.• Бесплатный паркинг: Удобство для ваших клиентов и сотрудников, что повышает привлекательность объекта.Ваш шанс на успешное вложение!Не упустите возможность стать владельцем объекта, который приносит доход. Это идеальный вариант для тех, кто хочет начать свой бизнес или сделать выгодное вложение.Свяжитесь с нами! МЫ ОТДЕЛ ПРОДАЖ ВСЕХ НОВОСТРОЕК!!!
                                  39 м2
                                  10 / 17 этаж
                                  Панель
                                  • Показать контакты
                                  • Добавить в избранное
                                  39 м2
                                  10 / 17 этаж
                                  Панель
                                  4 244 100 
                                  107 500 /м2
                                  Новостройка,
                                  дом сдан
                                    • В начало
                                    • 22
                                    • 23
                                    • 24
                                    Распечатать
                                    Продажа однокомнатных квартир в новостройках в Липецке
                                    • по районам
                                    • Левобережный округ
                                    • Октябрьский округ
                                    • Правобережный округ
                                    • Советский округ

                                    Вместе с этим также ищут:

                                    Продажа квартир в Липецке Продажа однокомнатных квартир в Липецке Продажа комнат в Липецке Продажа гаражей в Липецке Продажа вторички - квартиры в Липецке Квартиры в новостройках в Липецке

                                    🏠 Как купить однокомнатную квартиру в Липецке на N1?

                                    • ✔ В поисках объявления о продаже или покупке квартир в Липецке?
                                    • ✔ На N1 размещены 592 квартиры
                                    • ✔ Чтобы купить или продать недвижимость, воспользуйтесь формой поиска, фильтрами или быстрыми ссылками.

                                    💸 Сколько стоит однокомнатная квартира в Липецке?

                                    • 🟢 Средняя цена продажи однокомнатных квартир - 4,57 млн ₽
                                    • 🟢 Минимальная стоимость за 1 м2: 123,13 тыс ₽

                                    📚 Какая площадь однокомнатных квартир?

                                    • Наибольшая площадь: 120 м²
                                    • Минимальная площадь: 19 м²